Description
SUPPLIED WITH THE FOLLOWING:
- Heavy duty 304 stainless steel firebox chamber
- smoke gather combination
- Durable nickel plated grill, (size: 985mmx420mm)
- Slide in and under re-enforced door with handle-bar
- Charcoal tray
- Swivel suspension arm with hook for potjie pot
- Light fitting, suitable for a conventional light bulb
FEATURES:
- 304 Stainless Steel, Rust resistant
- Nickel plated grill
- 5 year warranty
- Charcoal starter for convenient on going cooking.
- 275 Diameter round spigot.

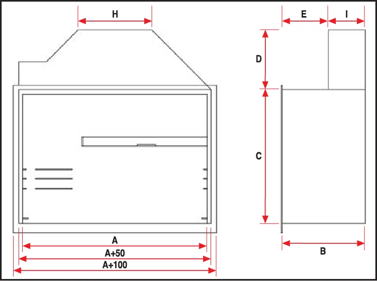
| Model | Measurement (mm) | Flue Size (mm) | ||||
|---|---|---|---|---|---|---|
| Size | A | B | C | D | E | I / Ø |
| Unibraai 700 INOX | 700 | 450 | 685 | 240 | 200 | 225 |
| Unibraai 1000 INOX | 1000 | 450 | 685 | 240 | 200 | 225 |
| Unibraai 1200 INOX | 1200 | 450 | 685 | 240 | 150 | 275 |









